住みたいへやの選び方
1Kとは?1R、1DKとの違いとメリット・デメリット、部屋選びのコツを紹介!

お使いのブラウザによってリンクが機能しない場合があります
一人暮らし向きの賃貸物件を探していると、1R(ワンルーム)や1DKのほかに、「1K」という間取りを目にすることが多いと思います。1Kとは、キッチンと居室が壁や扉で区切られている間取りを指します。ただ、「1K」という表記だけ見ても、「一人暮らしをするのに十分な広さだろうか?」、「どんなくらし方ができるのだろう?」と、疑問に感じる方も多いのではないでしょうか。この記事では、1Kとは具体的にどういうものなのか、1Rや1DKといったほかの間取りとの違いは何か、そして、自分にぴったりの1Kを見つけるためのポイントまで、詳しく解説します。理想の一人暮らしを実現する1K探しにぜひお役立てください。
1Kとは?1R、1DKとの違いと特徴
一人暮らしに向いているとされる1Kの賃貸物件。よく似た間取りに1Rや1DKがあります。それらとの違いを比較しました。
●1Kとは

1Kは一般的に、一つの居室とキッチン(K)のある部屋が区切られ、二つのスペースに分けられた間取りを指します。料理のにおいが気になる方や、キッチンと寝室を分けたい方におすすめです。
ただし、明確な定義があるわけではないため、キッチンのある場所が仕切られ一つの空間になっている場合や、玄関や洗濯機置き場などと一緒のスペースになっている間取りなど、不動産会社によって表記が異なる可能性があります。
1Kの専有面積は20~30平方メートルの広さが一般的で、単身者向けの賃貸物件としては比較的多い間取りのタイプです。同じ家賃帯で比較した場合、駅近など好立地な物件では居室の面積がやや狭くなる傾向にあります。
●1Kと1R、1DK、1LDKの間取りの違い
一人暮らし向きの間取りには、1R(ワンルーム)や1DKなどもありますが、どのような違いがあるのでしょうか? まず、1Rはキッチンと居室が一緒のスペースにあり、部屋全体がつながっている間取りを指します。キッチンが区切られていれば1K、区切られていなければ1Rです。極力、家賃を抑えたい方や、開放感のある部屋が好きな方におすすめです。
一方、1DKとの違いはキッチンのあるスペースの広さとなります。DKはダイニング・キッチンの意味となり、食事ができるダイニングスペースを確保できます。1DKは、食事をするスペースと寝るスペースを分けたい方におすすめです。一般的に1Kのキッチンは4.5畳未満。1DKのダイニング・キッチンは4.5畳~とされています。
1LDKの場合も同様で、こちらは一般的にリビング・ダイニング・キッチンが8畳以上の広さとされています。広々とした空間でくつろぎたい方や、遊びに来る友人が多い方におすすめです。

このようにキッチンスペースの広さや居室との仕切りの有無によって、間取りの名称が異なります。ご自身のライフスタイルに合わせて最適な間取りを選びましょう。
1Kのメリット・デメリット

キッチンと居室、二つのスペースに分かれていることが特徴の1K。自分らしく暮らすために、知っておきたいメリット・デメリットを紹介します。
●1Kのメリット
- <料理のにおいや煙が居室に広がりにくい>
- 居室とキッチンが分かれているため、仕切りのない1Rに比べて料理のにおいや煙が居室に広がりにくく、自炊の機会が多い人にとっては大きな魅力です。
- <プライバシーを保ちやすい>
- 玄関と居室の間に扉がある、もしくはキッチンが配置された間取りの物件であれば、急な訪問客にもプライベートな空間を見られずに対応できます。
- <生活にめりはりが付けやすい>
- 寝室やリビングのスペースと調理スペースの空間を分けることで、生活のオン・オフが切り替えやすくなります。
●1Kのデメリット
- <家賃が1Rより高くなる傾向がある>
- キッチンが区切られている分、1Rに比べて同じ専有面積であっても家賃が高くなる傾向にあります。
- <キッチンに空調が届きにくい>
- ほとんどの物件はエアコンが居室のみに設置され、キッチンの室温調整が難しくなります。調理中の暑さや寒さに備えて、小型扇風機やヒーターが必要になる場合もあります。
- <家具配置の自由度が低い場合がある>
- キッチンと居室の間に壁や扉がある分、1Rと比べて家具の配置が制限されやすくなります。特に大型家具を設置する場合は、レイアウトの選択肢が限られる可能性があります。
1Kの間取りタイプと具体例

ひと口に1Kといっても、水まわりが独立していたり、居室にロフト収納が付いていたりと、さまざまなタイプがあります。ここでは、多彩な1Kの間取りタイプとそれぞれの特徴、そして、どんなライフスタイルに合うのかを紹介します。
●キッチンと玄関がつながっているタイプ
玄関の扉を開けたらすぐにキッチンが見えるのが特徴です。居室の中は仕切りで隠せるので、玄関からは見られずに済みます。また、玄関側にキッチンや水まわり、トイレが集約されていることが多く、居室は比較的すっきりとしたスペースになります。
【こんな人におすすめ】頻繁に自炊をする人、生活動線を重視する人、居室の広さや使いやすさを優先したい人

●居室と玄関がつながっているタイプ
玄関を入るとすぐに居室があり、キッチンはその奥側にレイアウトされている間取りです。水まわりスペースが奥にあるため、生活感が出にくいのが特長です。また生活動線が短くなるメリットもあります。
【こんな人におすすめ】訪問者に水まわりを見せたくない人、訪れる友人が多い人、玄関から居室までの動線を短くしたい人

●玄関が仕切られているタイプ
キッチンと居室だけでなく、玄関も独立した空間として区切られている間取りです。玄関の扉を開けてひと呼吸置いて部屋に入ることができます。また、玄関から部屋の中を見られることがないため、セキュリティー面やプライバシー面を特に重視する方におすすめです。
【こんな人におすすめ】セキュリティー・プライバシーを最優先する人、玄関も空間として活用したい人

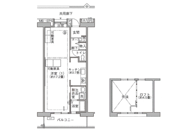
●ロフト付きのタイプ
居室にロフトが設けられ、収納やフリースペースなどとして空間を有効活用できる間取りです。ただし、ロフト部分は夏場になると熱気がこもりやすくなるので、寝室や趣味の部屋として使用する場合はサーキュレーターなどで、温度をコントロールする必要があります。
【こんな人におすすめ】収納スペースを増やしたい人、趣味のスペースを確保したい人、空間を有効活用したい人

失敗しない!1Kの部屋選びのポイント
あなたのライフスタイルに最適な1Kを見つけるために、部屋選びで重視すべきポイントを解説します。物件探しの参考にしてください。

●水まわりの位置と生活動線
先ほど紹介したように、物件によってキッチンや洗面所、お風呂場といった水まわりの位置は異なります。そのため、毎日の生活動線を考慮することが大切です。例えば、自炊の機会が多いのなら、帰宅後に食材をすぐ冷蔵庫にしまえるよう、玄関のそばにキッチンのある間取りを選ぶ、友人が多いなら水まわりが奥にある間取りを選ぶなど、自分の生活スタイルに合った間取りを選びましょう。
●洗濯機置き場の有無と位置
物件によっては、室内に洗濯機置き場がないケースもあります。洗濯の利便性を重視するなら、室内に洗濯機置き場のある物件であることを確認しましょう。
●収納スペースの大きさと使いやすさ
収納スペースが不足していると、部屋が片付かず居住スペースが狭くなる原因になります。自分の所有する衣服や本の量、家電の大きさなどを確認して、必要な収納スペースがあるか確認すると良いでしょう。クローゼットや備え付けの棚など、使いやすい収納スペースがあるかどうかも重要なポイントです。物件によっては押入れやクローゼットなどがないこともあり、収納ケースなどの収納家具の追加が必要になることもあります。
●日当たりと風通し
快適な生活を送る上で、日当たりと風通しは重要なポイントです。日当たりの良い部屋は洗濯物がよく乾き、暖房や照明を使う時間が短くて済むため、電気代の節約にもつながります。また風通しが良いと湿気がたまりにくく、カビの発生も防いでくれます。窓の向きや大きさ、周辺の建物の位置関係などを確認し、室内全体に光が差し込み、空気がしっかり循環するかをチェックしましょう。
●騒音と周辺環境
遮音性の高い構造の物件であっても、幹線道路や線路沿いに立地している場合は、騒音が気になることがあります。また隣の部屋や上下階からの生活音も注意が必要です。特に夜勤などで生活リズムが不規則な方にとっては、こうした音が大きなストレスになる可能性もあります。あわせて、スーパーやコンビニ、最寄り駅までの距離といった周辺環境の利便性についても、必ず確認しておきましょう。日中と夜間では交通量や人通りが変化するため、検討の際は時間帯を変えて複数回確認するのがおすすめです。
1Kの物件を探すならUR賃貸住宅がおすすめ

1Kの部屋なら、一人暮らし向きの物件が豊富なUR賃貸住宅がおすすめです。UR賃貸住宅は、礼金・仲介手数料・更新料・保証人がすべて不要なため、初期費用を大幅に抑えることができます。さらに条件が合えば、お得な家賃で住める可能性もあります。
●物件数が多く間取りも豊富なUR賃貸住宅
UR賃貸住宅は、独立行政法人都市再生機構(UR)が管理する賃貸住宅です。都心や郊外のさまざまなエリアに、1Kはもちろん、1DKや1LDKなど、一人暮らし向けの幅広いタイプの物件が充実しています。家賃や間取り、立地はもちろん、ライフスタイルや好みなど、希望の条件に合う部屋を探しやすいことが魅力の一つです。
●初期費用が安い!更新料もナシ!UR賃貸住宅のメリット
URは礼金・仲介手数料・更新料・保証人がすべて不要です。契約時に必要なお金は、敷金(月額家賃の2カ月分)と、入居日から月末までの日割り家賃、日割り共益費のみ。そのため新規契約時の初期費用を大幅に抑えることが可能です。契約更新時の更新料の負担もなく、自動更新で手続きが不要なため、安心して住み続けることができます。同じ場所でずっと暮らすことを考えている人におすすめです。保証人だけでなく保証会社も不要なため、依頼や手配を行う手間もかかりません。
なおUR賃貸住宅の申込み資格には収入要件があります。それが「申込者本人の平均月収額が基準月収額以上であること」で、給与収入や事業所得、不動産所得、雑所得(年金等)など、将来も継続すると認められる収入をもとに、原則として過去1年間の額面収入の合計額を12で割った額を平均月収額としています。入居を希望する物件の家賃の額、入居者が世帯か単身かによって、基準月収額は以下のように異なりますので確認しておきましょう。

●UR賃貸住宅で一人暮らしをする人におすすめの「U35割」
UR賃貸住宅には、ライフスタイルに合わせて選べるお得な家賃プランが用意されています。例えば、契約者が35歳以下の一人暮らし世帯も対象となる「U35割」は、3年間の定期借家契約で通常よりも家賃がお得になり、契約名義人が35歳以下であれば、学生や二人以上で暮らす世帯も使うことができます。
- <U35割> 35歳以下の方を対象としたお得な家賃
- 3年間限定で、お得な家賃で借りられます。対象は契約者が35歳以下の世帯。学生、単身、夫婦、子育て世帯も対象です。なお配偶者以外の同居者には一定の条件があります。
※3年間の定期借家契約
●UR賃貸住宅の多彩でお得な家賃プラン
「U35割」のほかにも、各種家賃プランを活用することができます。条件次第でお得に住めるため、ぜひチェックしてみてください。
- <近居割> 5年間で家賃が最大5%減額
- 募集家賃から5年間、5%減額されます。対象となるのは同じUR内、もしくは半径2km以内の別々のURで、親世帯・子世帯の二世帯が近居する場合で、新たに契約した世帯の家賃が減額されます。また、二世帯同時に契約する場合は、両世帯とも減額されます。条件を満たした子育て世帯については、最長5年間、家賃の20%(上限4万円)がサポートされます。ただし、世帯の所得合計が月25.9万円以下で、対象が一部団地となるなどの条件があります。
- <近居割WIDE> UR以外の住宅も対象に
- 募集家賃から5年間、5%減額されます。対象となるのは近居割WIDEエリア内のURとUR以外の住宅です。親世帯・子世帯の二世帯が近居する場合で、新たにUR賃貸住宅を契約した世帯の家賃が減額されます。近居割WIDEは、地域医療福祉拠点化に取り組んでいる物件を中心に導入されています。条件を満たした子育て世帯については、最長5年間、家賃の20%(上限4万円)がサポートされます。ただし、世帯の所得合計が月25.9万円以下で、対象が一部団地となるなどの条件があります。
- <そのママ割> 子育て家族を対象としたお得な家賃
- 3年間限定で、お得な家賃で借りられます。対象は妊娠中を含め、現に同居する満18歳未満の子供(孫、甥、姪なども可)を扶養している世帯です。
※3年間の定期借家契約
- <子育て割> 最長9年間、家賃を最大20%サポート
- 新婚世帯は最長3年間、子育て世帯は最長6年間、新婚世帯から子育て世帯へ切り替えた場合に最長9年間、家賃の最大20%(所得に応じた減額となります。上限2万5000円)がサポートされます。対象は結婚5年以内の新婚世帯、または18歳未満の子供がいる世帯。いずれも所得合計が月25.9万円以下の場合となります。
●単身者同士で同居ができる「ハウスシェアリング制度」
UR賃貸住宅でルームシェアをするときに注目したいのが「ハウスシェアリング制度」です。友達など家族以外の単身者同士の入居について、原則2名まで契約ができます(1K、1DKおよび1LDKの住宅では2名が限度となります。住宅形式に応じて3名以上でも同居が可能。ただし居室数=最大人数となります)。友人同士やカップルでのルームシェアなど、さまざまな住まい方に対応しています。
代表者が契約するのではなく、シェアする入居者全員が契約者となるため、それぞれの平均月収額が一定額以上であるなどの申込資格に該当すれば入居が認められます。満18歳以上の学生の場合は、平均月収額が条件に満たなくても申込み可能な場合があるため、学生でもルームシェアをして暮らすことができます。

間取りの種類が豊富な1K。まずは自分のしたいくらしから間取りを選ぶ
1Kとはどのような間取りなのか、1Rや1DKとの違い、そして、1Kのさまざまな間取りタイプや部屋選びのポイントについて詳しく解説してきました。1Kは、コストも比較的抑えられ、物件の選択肢も豊富で、一人暮らしに人気の間取りです。しかし、ひと口に「1K」といっても、いろいろな間取りタイプがあるため、ご自身が「どんなくらしをしたいのか」をイメージすることが大切です。
一人暮らしにベストな間取りはこれと言い切ることは難しいもの。物件によって広さや間取り、家賃や立地など重視するポイントを考慮しながら、優先順位を決めて部屋探しをすると、ぴったりな部屋が見つかるはずです。
住みたい間取りをイメージできたら、全国でさまざまな間取りのタイプを見つけることができるUR賃貸住宅で検索しましょう。自分らしい住まいを見つけて、充実の一人暮らしをぜひ始めてください。
監修/佐川 旭
1Kに関するよくある質問(FAQ)
- Q.1Kとはどんな間取りですか?
- A.1Kとは、キッチンと居室が壁や扉で区切られている間取りを指します。料理のにおいや煙が居室に広がりにくく、プライバシーを保ちやすいことがメリットで、一人暮らし向けの賃貸物件として人気が高い間取りです。
- Q.1Kと1Rの違いは何ですか?
- A.1Kと1R(ワンルーム)の主な違いは、キッチンと居室が区切られているかどうかです。1Kはキッチンと居室が独立していますが、1Rはキッチンと居室が一つの空間にあります。
- Q.1Kと1Rはどちらがおすすめですか?
- A.1Kと1Rのどちらが適しているかは、ご自身のライフスタイルによって異なります。1Kは、自炊が多い方や生活にめりはりを付けたい方、プライバシーを重視する方におすすめです。1Rは、家賃を抑えたい方や、開放感のある部屋が好きな方におすすめです。それぞれのメリット・デメリットを比較して、ご自身の優先順位にあった間取りを選びましょう。
- Q.1Kの広さはどれくらいですか?
- A.1Kの専有面積は20~30平方メートルが一般的です。これは単身者向けの賃貸物件として比較的多く見られる広さです。シングルベッド、テレビ台、収納棚、ローテーブルなど、一人暮らしで使用する家具を配置することができます。
- Q.1Kのメリットは何ですか?
- A.1Kのメリットは主に以下の3点です。
- ・キッチンが分かれているため、料理のにおいが居室に広がりにくい。頻繁に自炊する人にとって魅力
- ・玄関から居室が見えにくい構造が多く、プライベート空間を見せずに訪問客の対応ができる
- ・寝室とキッチンの空間を区切ることで、生活の切り替えがしやすくなる
- Q.1Kのデメリットは何ですか?
- A.1Kのデメリットは主に以下の3点です。
- ・キッチンと居室が分かれている分、同じ専有面積でも1Rより家賃が高くなる傾向にある
- ・エアコンが居室のみに設置されていることが多く、キッチンに空調が届きにくい
- ・キッチンと居室を区切る壁や扉があるため、家具配置が制限される場合もある
- Q.1Kで初期費用を抑える方法はありますか?
- A.UR賃貸住宅は、礼金・仲介手数料・更新料・保証人がすべて不要なため、初期費用を大幅に抑えることができます。契約時に必要な費用は、敷金(月額家賃の2カ月分)と、入居日から月末までの日割り家賃、日割り共益費のみです。
- Q.1Kで二人暮らしはできますか?
- A.一般的には1Kは一人暮らし向けの間取りですが、UR賃貸住宅には単身者同士で同居が可能な「ハウスシェアリング制度」があり、1Kでも2名まで契約できる場合があります。ただし、居室の広さや収納スペースなどを考慮し、ライフスタイルにあっているか十分に検討することをおすすめします。


一人暮らしに向いている1Kの賃貸物件。その特徴や選ぶ際のポイントを確認しよう
- ・居室とキッチンが区切られた「1K」には、目的によってメリットとデメリットがある
- ・さまざまなタイプがある1K。くらし方に合った間取りを選ぶことが重要
- ・1Kの異なる間取りタイプごとに、物件選びのポイントを確認すること
- ・1Kや1DKなど、一人暮らし向きの物件が豊富なUR賃貸住宅
くらしのカレッジ編集部は、「くらし」に関するさまざまなヒントをお届けすることを目的に、インテリア、リノベーション、DIY、子育て、イベント情報など、生活を豊かにするアイデアや日常的に楽しめるコンテンツをご紹介しています。
お使いのブラウザによってリンクが機能しない場合があります
















